Русский English
Български
Беларускі
Український
Српски
Hrvatski
Română
Polski
Slovenský
Magyar
Статьи В закладки Контакты Карта   
Компания Audi Компания Ford Компания Hyundai Компания Kia Компания Mazda Компания Mercedes-Benz Компания Nissan
MitsubishiMan.ru
 
 
 
 
 
 
 
Главная Colt Lancer Galant L200 Outlander Pajero Остальные
Лансер 9 (2000-2007, бензин) Лансер 3 и 5 (1984-1992)

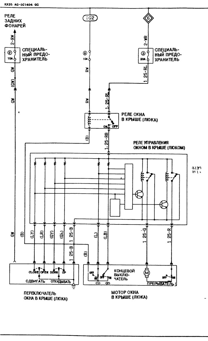
Токовая цепь окна в крыше (люка) (Mitsubishi Lancer 3)

  • Главная
  • Лансер
  • 3 (1984-1992)
  • Электрооборудование
  • Электрические схемы
  • Токовая цепь окна в крыше (люка)
0

Токовая цепь окна в крыше (люка)



Эта статья доступна на: английском, болгарском, белорусском, украинском, сербском, хорватском, румынском, польском, словацком, венгерском
Данная статья была проверена: Дмитрий Васильев
Поделитесь с друзьями:
◀ Предыдущие
Лансер 3 и 5: Электрические схемы
Следующие ▶

Токовая цепь прикуривателя
Токовая цепь часов
Токовая цепь аудиосистемы
Токовая цепь электропривода наружного зеркала
Токовая цепь обогрева заднего стекла
Токовая цепь обогрева сидений
Токовая цепь антиблокировочной системы тормозов
Похожие материалы для других моделей Мицубиси

➤ Открывание люка в крыше Мицубиси Кольт 2 и 3 (1983-1993)
➤ Схема сдвижного люка Мицубиси L200 4 (2005-2014, дизель)
➤ Антенна на крыше Мицубиси Аутлендер 1 (2003-2008)
➤ Окна с электроприводом стекол Мицубиси Паджеро 1 и 2 (1982-1999)
➤ Ремонт люка в крыше Мицубиси Каризма (1995-2004)
Ссылка в разных форматах на эту статью
Комментарии и отзывы посетителей
Комментариев пока нет


Сложите два числа 20 + 17

       





Лансер 9 (2000-2007, бензин) 
  • Общая информация
  • Руководство по эксплуатации
  • Техническое обслуживание
  • Силовой агрегат
  • Ремонт двигателей MPI
  • Ремонт двигателей GDI
  • Капремонт двигателей
  • Система охлаждения и смазки
  • Система впрыска топлива MPI
  • Система впрыска топлива GDI
  • Система впуска и выпуска
  • Система пуска и заряда
  • Трансмиссия
  • Автоматическая коробка
  • Вариатор (CVT)
  • Приводные валы и редуктор
  • Шасси и ходовая часть
  • Передняя подвеска
  • Задняя подвеска
  • Рулевое управление
  • Тормозная система
  • Кузов и салон
  • Двери, замки и окна
  • Экстерьер (наружные элементы)
  • Интерьер (внутренние элементы)
  • Электрооборудование
  • Отопитель и кондиционер
  • Система безопасности SRS
  • Оборудование и приборы
  • Электрические схемы (седан)
  • Электрические схемы (универсал)
Лансер 3 и 5 (1984-1992) 
  • Общая информация
  • Техническое обслуживание
  • Силовой агрегат
  • Ремонт двигателя
  • Система смазки
  • Система охлаждения
  • Система зажигания
  • Топливная система
  • Карбюратор
  • Впрыск топлива
  • Система питания дизеля
  • Выхлопная система
  • Трансмиссия
  • Сцепление
  • Коробка передач
  • Шасси и ходовая часть
  • Передняя подвеска
  • Задняя подвеска
  • Рулевое управление
  • Тормозная система
  • Колеса и шины
  • Кузов и салон
  • Экстерьер (наружные элементы)
  • Интерьер (внутренние элементы)
  • Система отопления
  • Электрооборудование
  • Оборудование и приборы
  • Силовые устройства
  • Электрические схемы
   Автомобильный анекдот:
показать следующий
MitsubishiMan.ru © 2018–2026 • Мобильная версия • Статьи о Мицубиси • Контакты • Карта сайта: EN BG BY UA RS HR RO PL SK HU • Поиск по сайту • В закладки
Кольт 2 и 3 (1983-1993) · Кольт 4 и 5 (1991-2003) · Кольт 5 (1995-2003) · Лансер 3 и 5 (1984-1992) · Лансер 9 (2000-2007) · Галант 5 (1983-1989) · Галант 6 и 7 (1987-1998) · L200 4 (2005-2014) · Аутлендер 1 (2003-2008) · Паджеро 1 и 2 (1982-1999) · Паджеро 4 (2006-2021) · Каризма (1995-2004) · Спейс Стар (1998-2005) · Новости об автомобилях · Справочник автомеханика · Дизельные двигатели · Генераторы иномарок · Пассивная безопасность авто
Этот ресурс ставит cookie-файлы 🍪, чтобы не мучить вас повторным вводом данных.