Русский English
Български
Беларускі
Український
Српски
Hrvatski
Română
Polski
Slovenský
Magyar
Статьи В закладки Контакты Карта   
Компания Audi Компания Ford Компания Hyundai Компания Kia Компания Mazda Компания Mercedes-Benz Компания Nissan
MitsubishiMan.ru
 
 
 
 
 
 
 
Главная Colt Lancer Galant L200 Outlander Pajero Остальные
Лансер 9 (2000-2007, бензин) Лансер 3 и 5 (1984-1992)

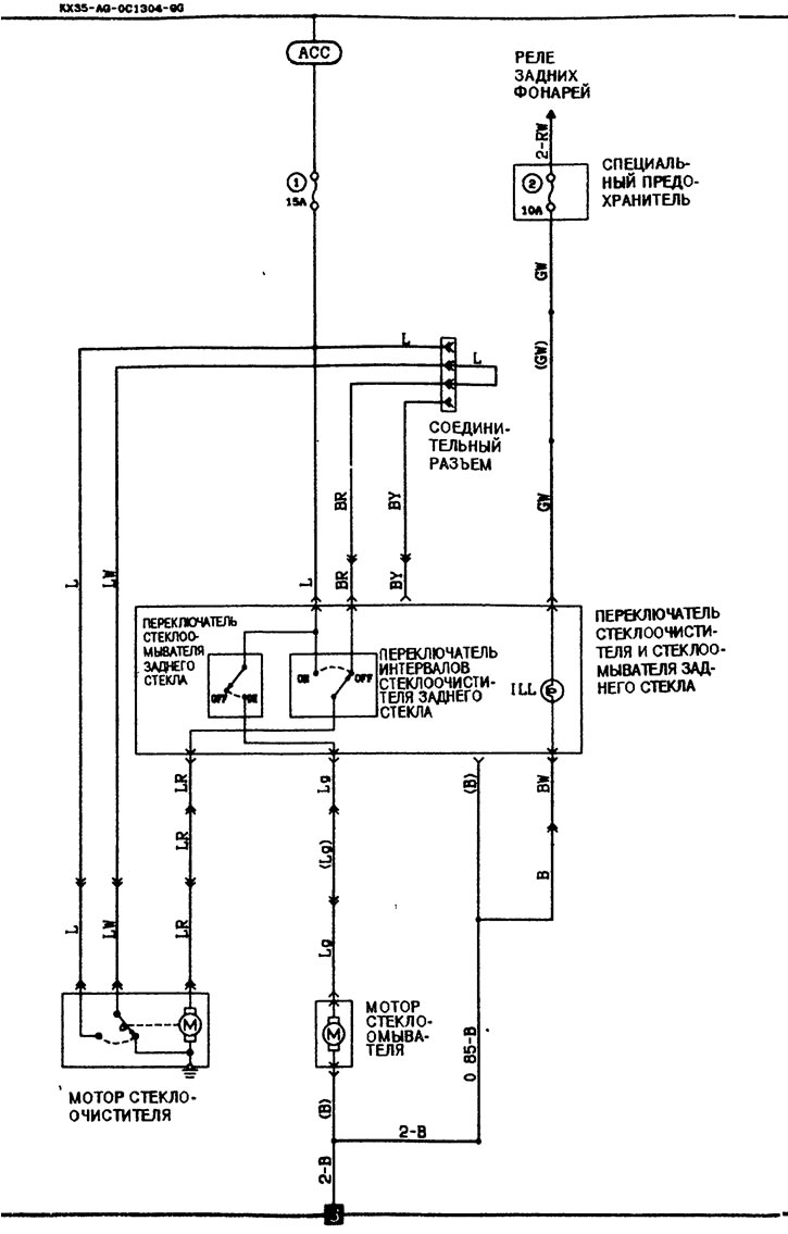
Токовая цепь стеклоочистителя и стеклоомывателя заднего стекла (Mitsubishi Lancer 3)

  • Главная
  • Лансер
  • 3 (1984-1992)
  • Электрооборудование
  • Электрические схемы
  • Токовая цепь стеклоочистителя и стеклоомывателя заднего стекла
0
Оглавление: Автомобили с интервальным режимом…⤓ Автомобили без интервального режима…⤓

Автомобили с интервальным режимом работы





Автомобили без интервального режима работы



Эта статья доступна на: английском, болгарском, белорусском, украинском, сербском, хорватском, румынском, польском, словацком, венгерском
Данная статья была проверена: Дмитрий Васильев
Поделитесь с друзьями:
◀ Предыдущие
Лансер 3 и 5: Электрические схемы
Следующие ▶

Токовая цепь стеклоочистителя и стеклоомывателя
Токовая цепь кондиционера (дизельный двигатель)
Токовая цепь кондиционера (обычный карбюратор «М/Т», FBC, MPI-8, OHC «MT-2WD»)
Токовая цепь отопителя
Токовая цепь стеклоподъемника (Colt хэтчбек)
Токовая цепь фароомывателя
Токовая цепь обогрева заднего стекла
Токовая цепь электропривода наружного зеркала
Токовая цепь аудиосистемы
Токовая цепь часов
Похожие материалы для других моделей Мицубиси

➤ Проверка обогревателя заднего стекла Мицубиси Кольт 4 и 5 (1991-2003)
➤ Выключатель электрообогрева заднего стекла/наружных зеркал… Мицубиси Галант 6 и 7 (1987-1998)
➤ Переключатель стеклоочистителя и стеклоомывателя Мицубиси L200 4 (2005-2014, дизель)
➤ Переключатель стеклоочистителя и омывателя заднего стекла Мицубиси Аутлендер 1 (2003-2008)
➤ Обогреватель заднего стекла Мицубиси Паджеро 1 и 2 (1982-1999)
➤ Переключатель очистителя и омывателя заднего стекла (кузов… Мицубиси Каризма (1995-2004)
Ссылка в разных форматах на эту статью
Комментарии и отзывы посетителей
Комментариев пока нет


Сложите два числа 49 + 48

       





Лансер 9 (2000-2007, бензин) 
  • Общая информация
  • Руководство по эксплуатации
  • Техническое обслуживание
  • Силовой агрегат
  • Ремонт двигателей MPI
  • Ремонт двигателей GDI
  • Капремонт двигателей
  • Система охлаждения и смазки
  • Система впрыска топлива MPI
  • Система впрыска топлива GDI
  • Система впуска и выпуска
  • Система пуска и заряда
  • Трансмиссия
  • Автоматическая коробка
  • Вариатор (CVT)
  • Приводные валы и редуктор
  • Шасси и ходовая часть
  • Передняя подвеска
  • Задняя подвеска
  • Рулевое управление
  • Тормозная система
  • Кузов и салон
  • Двери, замки и окна
  • Экстерьер (наружные элементы)
  • Интерьер (внутренние элементы)
  • Электрооборудование
  • Отопитель и кондиционер
  • Система безопасности SRS
  • Оборудование и приборы
  • Электрические схемы (седан)
  • Электрические схемы (универсал)
Лансер 3 и 5 (1984-1992) 
  • Общая информация
  • Техническое обслуживание
  • Силовой агрегат
  • Ремонт двигателя
  • Система смазки
  • Система охлаждения
  • Система зажигания
  • Топливная система
  • Карбюратор
  • Впрыск топлива
  • Система питания дизеля
  • Выхлопная система
  • Трансмиссия
  • Сцепление
  • Коробка передач
  • Шасси и ходовая часть
  • Передняя подвеска
  • Задняя подвеска
  • Рулевое управление
  • Тормозная система
  • Колеса и шины
  • Кузов и салон
  • Экстерьер (наружные элементы)
  • Интерьер (внутренние элементы)
  • Система отопления
  • Электрооборудование
  • Оборудование и приборы
  • Силовые устройства
  • Электрические схемы
   Автомобильный анекдот:
показать следующий
MitsubishiMan.ru © 2018–2026 • Мобильная версия • Статьи о Мицубиси • Контакты • Карта сайта: EN BG BY UA RS HR RO PL SK HU • Поиск по сайту • В закладки
Кольт 2 и 3 (1983-1993) · Кольт 4 и 5 (1991-2003) · Кольт 5 (1995-2003) · Лансер 3 и 5 (1984-1992) · Лансер 9 (2000-2007) · Галант 5 (1983-1989) · Галант 6 и 7 (1987-1998) · L200 4 (2005-2014) · Аутлендер 1 (2003-2008) · Паджеро 1 и 2 (1982-1999) · Паджеро 4 (2006-2021) · Каризма (1995-2004) · Спейс Стар (1998-2005) · Новости об автомобилях · Справочник автомеханика · Дизельные двигатели · Генераторы иномарок · Пассивная безопасность авто
Этот ресурс ставит cookie-файлы 🍪, чтобы не мучить вас повторным вводом данных.