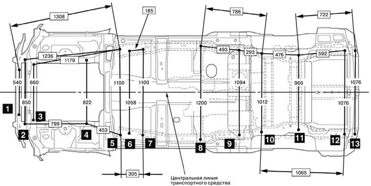
Днище кузова (длинная колесная база)
Примечание. Все размеры указаны в миллиметрах.



| № | Точка измерения | Форма отверстия | Размер, мм |
| 1 | Центр монтажного отверстия подпорной пластины | Круглое | 11 |
| 2 | Центр установочного отверстия переднего лонжерона | Круглое | 25 |
| 3 | Центр установочного отверстия заднего конка переднего упрочнения | Круглое | 20 |
| 4 | Центр монтажного отверстия передней рамы | Круглое | 20 |
| 5 | Центр установочного отверстия переднего лонжерона | Круглое | 25 |
| 6 | Центр монтажного отверстия центральной поперечины крепления коробки передач | Круглое | 13 |
| 7 | Центр монтажного отверстия центральной поперечины крепления коробки передач | Круглое | 13 |
| 8 | Центр установочного отверстия заднего лонжерона | Круглое | 12 |
| 9 | Центр установочного отверстия кронштейна буксировочной тяги | Круг | 15 |
| 10 | Центр установочного отверстия задней рамы | Круглое | 21 |
| 11 | Центр установочного отверстия заднего лонжерона | Круглое | 25 |
| 12 | Центр переднего установочного отверстия кронштейна крюка | Круглое | 14 |
| 13 | Центр заднего установочного отверстия кронштейна крюка | Круглое | 16 |
Примечание. Точки измерения для модели с длинной колесной базой аналогичны точкам измерения для модели с короткой колесной базой.
Установочные размеры подвески (длинная колесная база)
Примечание. Все размеры указаны в миллиметрах.



| № | Точка измерения | Форма отверстия | Размер, мм |
| 4 | Центр заднего монтажного отверстия передней рамы | Круглое | 20 |
| 5 | Центр установочного отверстия переднего лонжерона | Круглое | 25 |
| 8 | Центр установочного отверстия заднего лонжерона | Круглое | 12 |
| 14 | Центр переднего монтажного отверстия передней рамы | Круглое | 20 |
| 15 | Центр монтажного отверстия переднего амортизатора | Круглое | 31,5 |
| 16 | Центр установочного отверстия кронштейна буксировочной тяги | Круглое | - |
| 17 | Центр переднего монтажного отверстия задней рамы | Круглое | 18 |
| 18 | Центр заднего монтажного отверстия задней рамы | Круглое | 20 |
| 19 | Центр монтажного отверстия заднего амортизатора | Круглое | 19 |
Примечание. Точки измерения для модели с длинной колесной базой аналогичны точкам измерения для модели с короткой колесной базой.
